- 関連カテゴリ:
- 強化ガラスドア用 フロアヒンジ
- ニュースター
- フロアヒンジ
特設ページ
- NEWSTAR
- 商品コード:ns e-130
主として玄関ドア用として使用。取替・修理・交換用として。
ニュースター フロアヒンジ E-130 【ストップ無し, 中心吊り・自由開き(内外90°開き), 強化ガラスドア用, NEWSTAR】
ニュースター フロアヒンジ E-130 【ストップ無し, 中心吊り・自由開き(内外90°開き), 強化ガラスドア用, NEWSTAR】
カートに追加する前に、必ず 「セット内容」をご選択 下さい。
【フルセット品】… 本体・アーム・トップピボット等全て揃ったセット品。
【部品無し】… アーム・トップピボットが不要の方はこちらを選択ください。
商品概要
- 商品分類
- フロアヒンジ
- メーカー・ブランド
- NEWSTAR(NS, ニュースター, 日本ドアーチェック製造)
- 品番・型番
- E-130
- 機能・特徴
-
- 主として玄関ドアに使用。
- 本体が大きいので各部の構造に無理がありません。
- 内外別々に閉扉速度は調整可能。
- ドアを吊りこんだままで内外別々に開閉力は調整可能。
- 適用ドアの種類
- 強化ガラスドア用(テンパードア用)
- 開閉様式
- 中心吊り・自由開き(開き角度:内外90°開き)
- ストップ機能
- ストップ無し
- 左右勝手
- 共通
- 適用ドア寸法
- DW914 × DH2134mm
- ドア重量
- ―
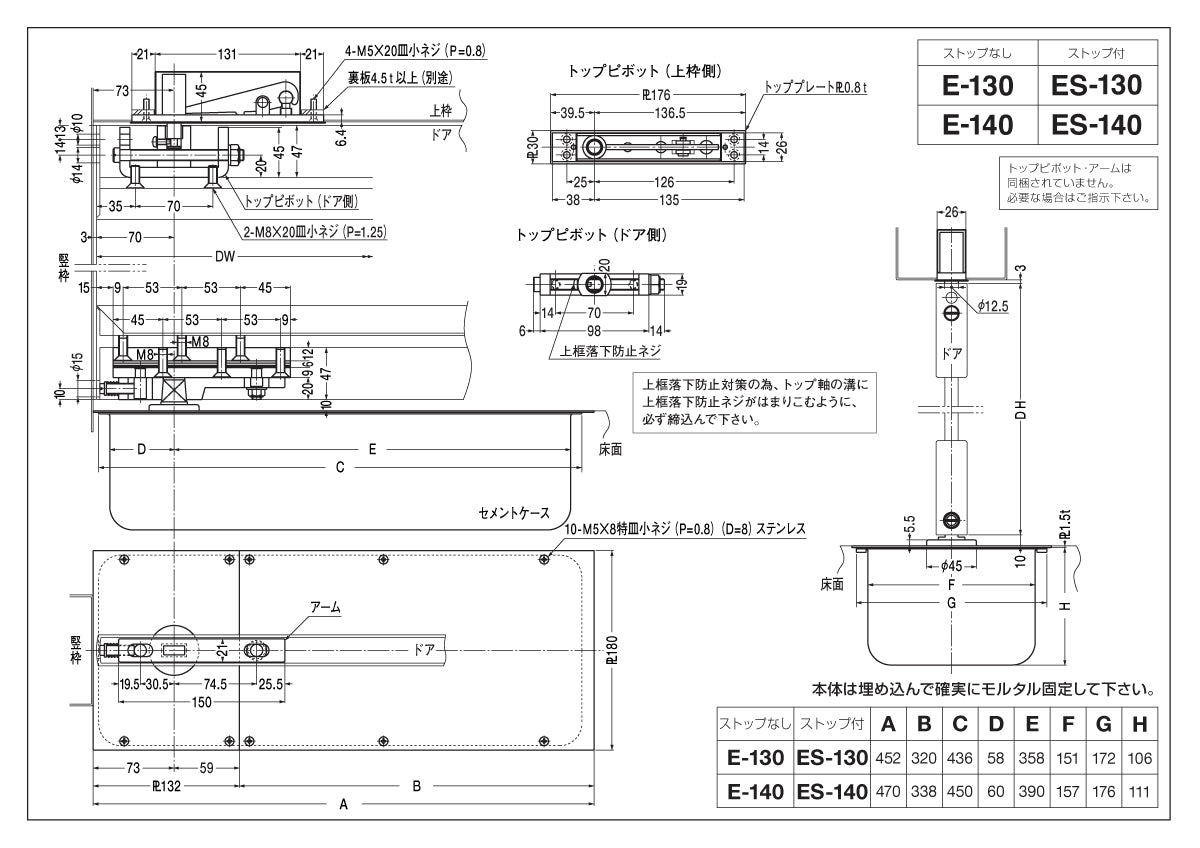
[ 製品図面・納まり図 ]
-
- ピンチアウト(拡大)操作できます -
[ 製品仕様・特徴 ]
- カタログ「E-130・E-140」
-
- ピンチアウト(拡大)操作できます -
[ 仕様一覧表 ]
[ 関連リンク ]
ニュースターのフロアヒンジ一覧
ニュースターのカテゴリ一覧



