- 関連カテゴリ:
- 80シリーズ
- 温度ヒューズ付き(防火ドア用)
- ニュースター
- ドアクローザー
特設ページ
- NEWSTAR
- 商品コード:ns pf-186
防火ドア用ドアクローザー。取替・修理・交換用として。
ニュースター 温度ヒューズ付きドアクローザー PF-186 【パラレル型, ストップ付き, 80シリーズ, NEWSTAR, ドアチェック】
ニュースター 温度ヒューズ付きドアクローザー PF-186 【パラレル型, ストップ付き, 80シリーズ, NEWSTAR, ドアチェック】
カートに追加する前に、必ず 「カラー」をご選択 下さい。
商品概要
- 商品分類
- ドアクローザー(ドアチェック)
- メーカー・ブランド
- NEWSTAR(NS, ニュースター, 日本ドアーチェック製造)
- 品番・型番
- PF-186
- シリーズ
- 80シリーズ 【温度ヒューズ付き(防火ドア用)】
- 機能・特徴
- 温度ヒューズ付ドアクローザは平常時、防火ドアを通路の壁際に開放保持します。
火災が発生した場合、ドアクローザの温度ヒューズが、熱によって溶け、開放保持金具が外れ、ドアクローザの自閉力の働きにより、ドアを閉鎖します。 - 取付様式
- パラレル型
- ストップ機能
- ストップ付き(ストップ角度:180°まで設定可能。)
- 左右勝手
- 左右勝手兼用。
- 適用ドア寸法
- DW1800 × DH2700mm
- ドア重量
- 180kg以下
- カラー
-
- シルバー(※標準色)【N-01】
- バーントアンバー(ブロンズ)【N-52】
- ブラック【N-31】
- クリアグレー【N-62】
- ホワイト【N-22】
- アイボリーホワイト【N-04】
- ゴールド【N-48】
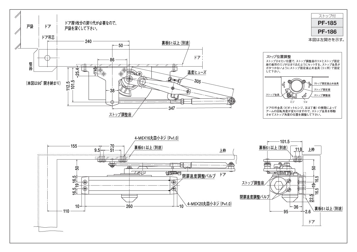
[ 製品図面・納まり図 ]
-
- ピンチアウト(拡大)操作できます -
[ 製品仕様・特徴 ]
- カタログ(80シリーズ・温度ヒューズ付き)
-
- ピンチアウト(拡大)操作できます -
[ 仕様一覧表 ]





