- 関連カテゴリ:
- 一般ドア用 フロアヒンジ
- ニュースター
- フロアヒンジ
特設ページ
- NEWSTAR
- 商品コード:ns o-855
持出吊りの浅いスラブに対応する薄型タイプ。取替・修理・交換用として。
ニュースター フロアヒンジ O-855 【ストップ無し, 持出吊り・一方開き(一方180°開き), 一般ドア用, NEWSTAR】
ニュースター フロアヒンジ O-855 【ストップ無し, 持出吊り・一方開き(一方180°開き), 一般ドア用, NEWSTAR】
カートに追加する前に、必ず 「左右勝手」をご選択 下さい。
商品概要
- 商品分類
- フロアヒンジ
- メーカー・ブランド
- NEWSTAR(NS, ニュースター, 日本ドアーチェック製造)
- 品番・型番
- O-855
- 機能・特徴
-
- 浅いスラブに対応する薄型タイプ。
- 閉扉速度調整は2バルブ方式。
- 本体移動調整型。
ドア幅方向調整はドア吊り込み後でも可能。
- 適用ドアの種類
- 一般ドア用
- 開閉様式
- 持出吊り・一方開き(開き角度:一方180°開き)
- ストップ機能
- ストップ無し
- 左右勝手
- 左右勝手あり
※ドアが閉じられた状態から押して開ける際に吊元がどちらにあるかで判断して下さい。
- 押して開けた際に吊元が右側 → 右勝手
- 押して開けた際に吊元が左側 → 左勝手
- 適用ドア寸法
- DW1200 × DH2400mm
- ドア重量
- 280kg以下
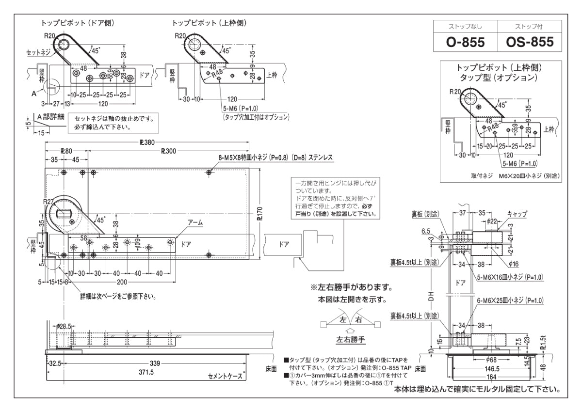
[ 製品図面・納まり図 ]
-
- ピンチアウト(拡大)操作できます -
[ 製品仕様・特徴 ]
- カタログ「O-835・O-845・O-855」
-
- ピンチアウト(拡大)操作できます -
[ 仕様一覧表 ]
[ 関連リンク ]
ニュースターのフロアヒンジ一覧
ニュースターのカテゴリ一覧



