- 関連カテゴリ:
- 旧型・廃番品の取替品
- ニュースター
- オートパワーヒンジ
- オートパワーヒンジ
- NEWSTAR
- 商品コード:ns hc-8kchb
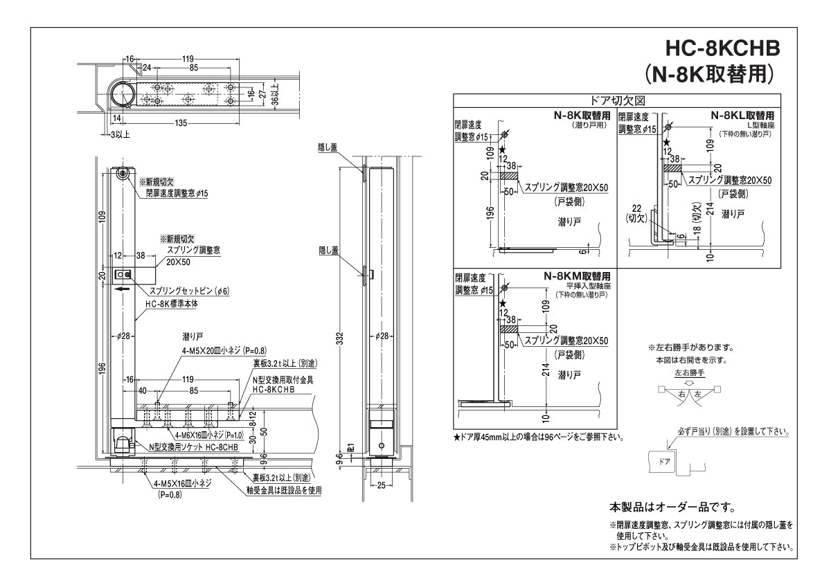
ニュースターの旧型オートパワーヒンジ(廃番品)の取替・交換品。
ニュースター 廃番オートパワーヒンジ N-8K用取替品 HC-8KCHB【中心吊り, 一方開き, 防火ドア用, NEWSTAR】
ニュースター 廃番オートパワーヒンジ N-8K用取替品 HC-8KCHB【中心吊り, 一方開き, 防火ドア用, NEWSTAR】
カートに追加する前に、必ず 「トップピボット」「左右勝手」をご選択 下さい。
「既設のトップピボットが流用できない」等で必要と思われる場合は、『必要』をご選択下さい。
商品概要
- 商品分類
- 旧型オートパワーヒンジ(廃番品)の取替品
- メーカー・ブランド
- NEWSTAR(NS, ニュースター, 日本ドアーチエック製造)
- 品番・型番
- HC-8KCHB(N-8K[廃番品]用 取替品)
- 機能・特徴
- 廃番になったオートパワーヒンジ「N型」のメンテナンス用・取替用本体です。
- 適用ドアの種類
- 防火ドア用
- 開閉様式
- 中心吊り・一方開き
- ストップ機能
- ストップ無し
- 左右勝手
- 左右勝手あり
ドアを押してどらに開くかで判断してください。
- 押して右側に開く場合 → 右勝手
- 押して左側に開く場合 → 左勝手
- 適用ドア寸法
- DW800 × DH2000mm
- ドア重量
- 50kg以下
- 既設品の判別方法
- スプリング調整窓の本体表示(品番シール)で確認できます。
- セット内容
-
- 取替用本体(HC-8K):1台
- N型交換用取付金具:1個
- N型交換用ソケット:1個
- 取付ビス(M6×16 皿小ネジ):4本
- 取付ビス(M5×25 皿小ネジ):4本
- 取扱説明書:1部



