- NEWSTAR
- 商品コード:ns aph n-80
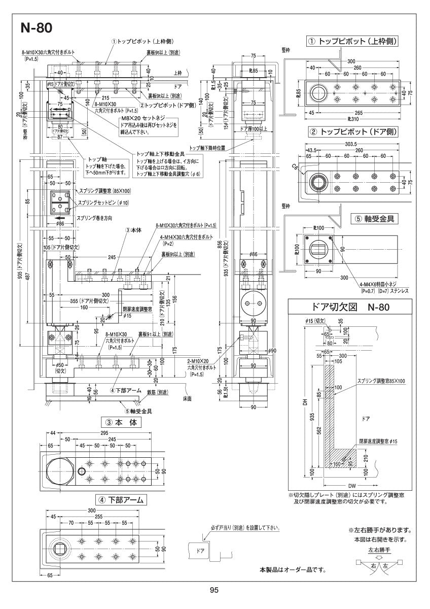
コンシールド(ドア内蔵)タイプでドア周りの美観がきれい。取替・修理・交換用に。
ニュースター オートパワーヒンジ N-80 【ストップ無し, 中心吊り・一方開き(一方180°開き), 防火ドア用, NEWSTAR】
ニュースター オートパワーヒンジ N-80 【ストップ無し, 中心吊り・一方開き(一方180°開き), 防火ドア用, NEWSTAR】
カートに追加する前に、必ず 「左右勝手」をご選択 下さい。
商品概要
- 商品分類
- オートパワーヒンジ
- メーカー・ブランド
- NEWSTAR(NS, ニュースター, 日本ドアーチエック製造)
- 品番・型番
- N-80
- 機能・特徴
-
- コンシールド(ドア内蔵)タイプ。
- 防火ドア、排煙ドア等に対応。
- 開閉力調整及び閉扉速度調整が簡単。
- 調整窓が通路側に向く、逆窓用本体も製作可能。
- U型トップピボットは逆取付で天井までのスペースが狭い場合に対応。
- 適用ドアの種類
- 防火ドア用
- 開閉様式
- 中心吊り一方開き
- ストップ機能
- ストップ無し
- 左右勝手
- 左右勝手あり
ドアが閉じられた状態から押して開ける際に吊元がどちらにあるかで判断して下さい。
- 押して開けた際に吊元が右側 → 右勝手
- 押して開けた際に吊元が左側 → 左勝手
- 適用ドア寸法
- DW4000 × DH5000mm
- ドア厚
- 100mm以上
- ドア重量
- 1000kg以下

