- 関連カテゴリ:
- 折り戸用 オートパワーヒンジ
- ニュースター
- オートパワーヒンジ
- NEWSTAR
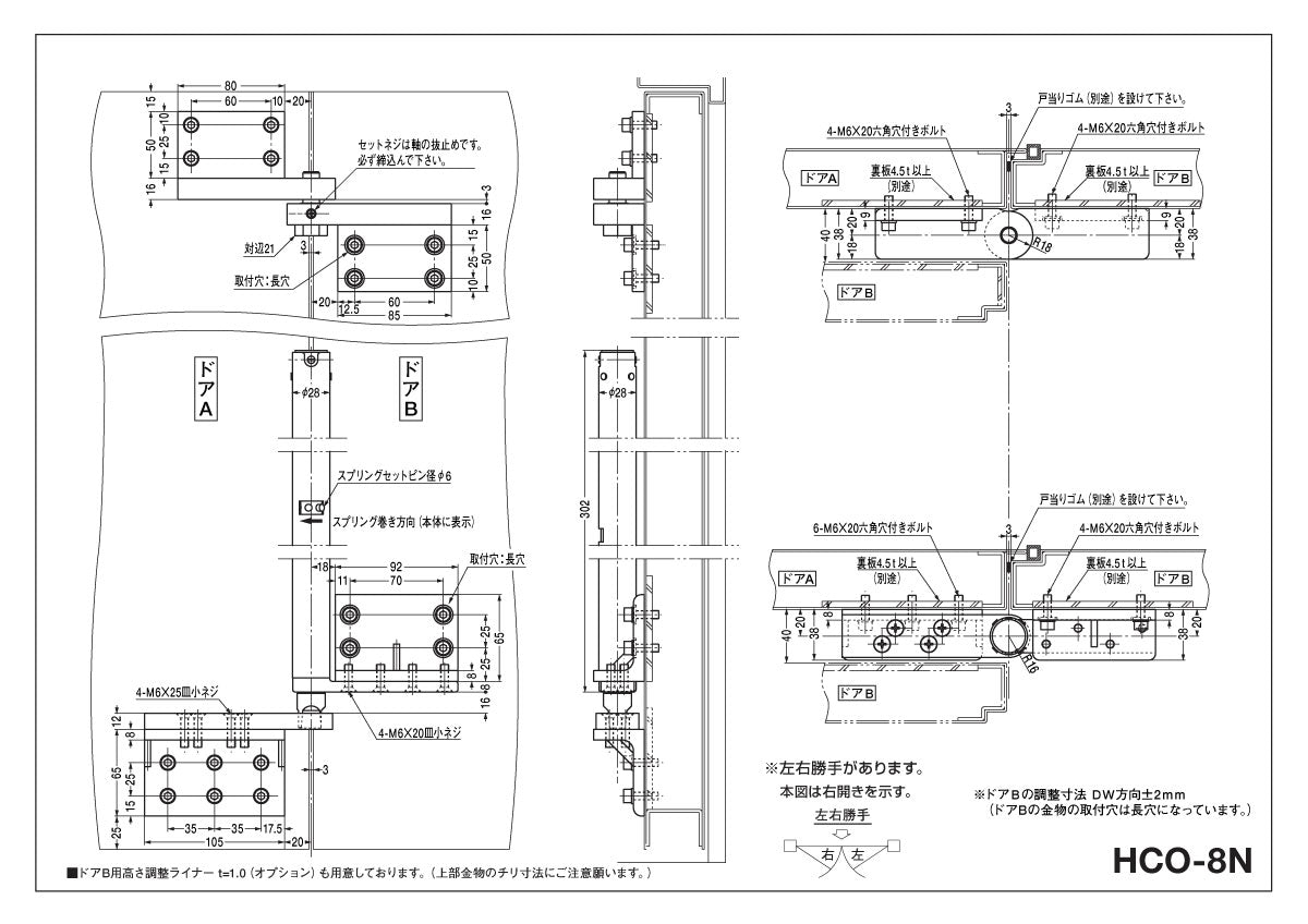
- 商品コード:ns aph hco-8n
戸袋が小さい場所に。取替・修理・交換用に。
ニュースター 折り戸用オートパワーヒンジ HCO-8N 【防火ドア用, NEWSTAR】
ニュースター 折り戸用オートパワーヒンジ HCO-8N 【防火ドア用, NEWSTAR】
カートに追加する前に、必ず 「左右勝手」をご選択 下さい。
商品概要
- 商品分類
- 折り戸用 オートパワーヒンジ
- メーカー・ブランド
- NEWSTAR(NS, ニュースター, 日本ドアーチエック製造)
- 品番・型番
- HCO-8N
- 機能・特徴
-
- 開口部が大きく戸袋が小さい場所(学校、ホテル、ビル等・・・など)に。
- 開閉力調整及び閉扉速度調整が簡単。
- 適用ドアの種類
- 防火ドア用
- 左右勝手
- 左右勝手あり
ドアが閉じられた状態から押して開ける際に吊元がどちらにあるかで判断して下さい。
- 押して開けた際に吊元が右側 → 右勝手
- 押して開けた際に吊元が左側 → 左勝手




