- 関連カテゴリ:
- スライディングクローザー
- 水平式(NSC型)
- 日東工器
特設ページ
- NITTO KOHKI
- 商品コード:nk nsc-cwks23
静音・軽快な開閉と施工性に優れた高性能引き戸クローザー。
日東工器 スライディングクローザー NSC-CWKS23-22 / NSC-CWKS23-31(製品一式) 【水平式, 木製建具用, 壁収納型, 引き戸クローザー, NITTO KOHKI】
日東工器 スライディングクローザー NSC-CWKS23-22 / NSC-CWKS23-31(製品一式) 【水平式, 木製建具用, 壁収納型, 引き戸クローザー, NITTO KOHKI】
カートに追加する前に、必ず 「レール長さ」をご選択 下さい。
商品概要
- 商品分類
- 引き戸クローザー(スライディングクローザー)
- メーカー・ブランド
- 日東工器(NITTO KOHKI)
- 型式・種類
- 水平式・木製建具用・壁収納型
- 品番・型番
-
- NSC-CWKS23-22(レール:L=2,200mm)
- NSC-CWKS23-31(レール:L=3,100mm)
- 機能・特徴
-
- 壁収納に対応してレールを除く全ての部品が開口部にて取付け、取り外し可能。壁収納全開ストップ装置・壁収納戸当たり金具を標準装備。
- 水平式木建て使用に必要な部品を標準装備。(ガイドレール・ガイドローラー等を標準装備。)
- コーチスクリューネジの採用でハンガーを扉に直付けできます。
- ストップ機能
- ストップ付き
- 左右勝手
- 左右勝手兼用
- 適用ドア重量
- 10~30kg
- 適用ドア寸法
-
- レール L=2,200mm:DW 700~1,200mm
- レール L=3,100mm:DW 1,200~1,600mm
- 最大ストーク
- 1,500mm
- 制動装置
- SC-C03
- 引込バネ(駆動装置)
- PS-02
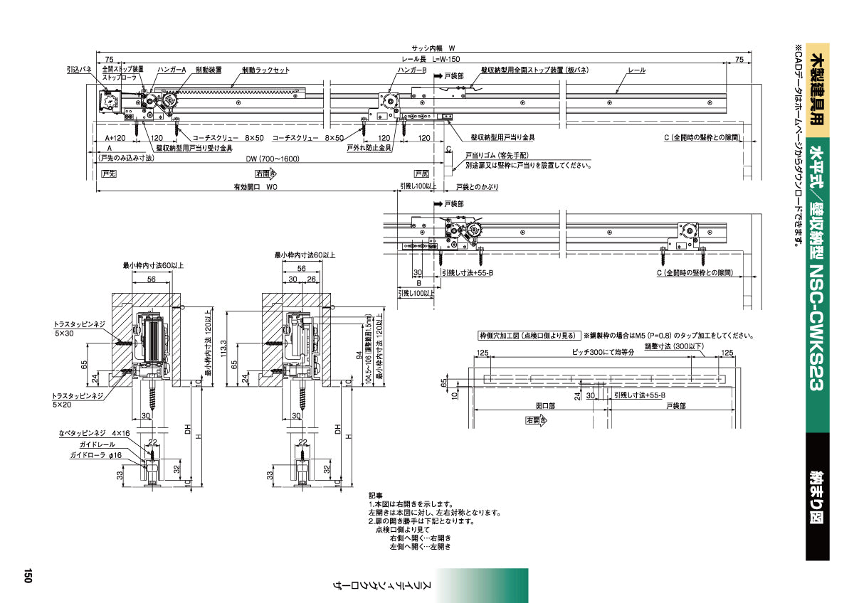
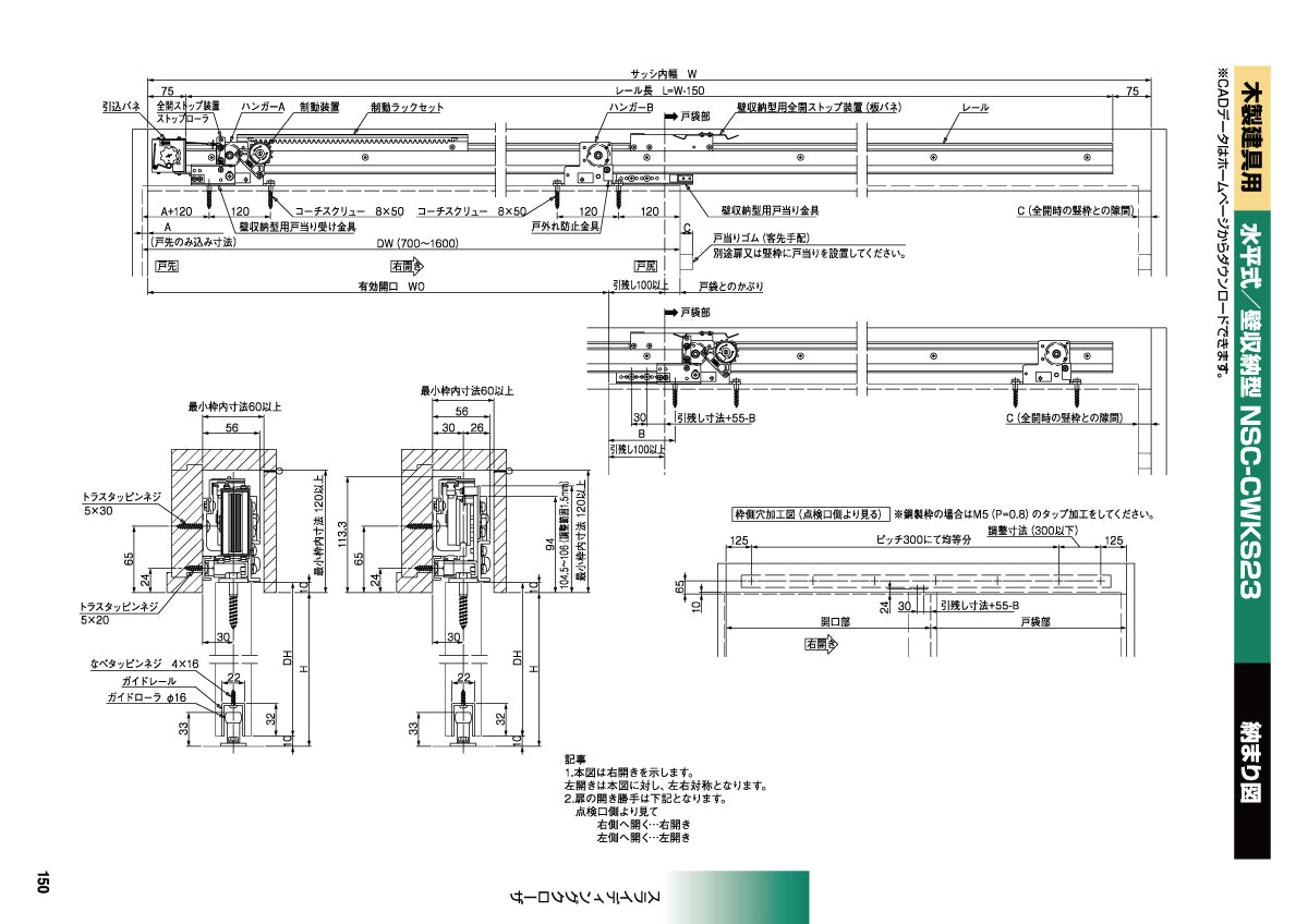
[ 製品図面・納まり図 ]
-
- ピンチアウト(拡大)操作できます -

[ 製品仕様・特徴 ]
- カタログ「NSC-CWKS23」
-
- ピンチアウト(拡大)操作できます -
[ 関連リンク ]
スライディングクローザー一覧
日東工器(NITTO KOHKI)のカテゴリ一覧









日東工器
オートヒンジ(丁番型)
スライディングクローザー


傾斜式(DSC型)
メンテナンス用部品・パーツ
オートヒンジ(丁番型)
いわきエンジニアリング
大鳥機工
カツデン
シブタニ
ダイケン
長沢製作所
中西産業
日東工器
ニュースター
ハシダ技研
ホクシヨー
増田産業
マルキ
美和ロック
ユニオン
ヨコヅナ
リョービ