- 関連カテゴリ:
- スライディングクローザー
- 傾斜式(DSC型)
- 日東工器
特設ページ
- NITTO KOHKI
- 商品コード:nk dsc-cw30v
静音・軽快な開閉と施工性に優れた高性能引き戸クローザー。
日東工器 スライディングクローザー DSC-CW30V-22 / DSC-CW30V-31(製品一式) 【扉重量:10~30kg用, 傾斜式, 木製軽量建具用, 引き戸クローザー, NITTO KOHKI】
日東工器 スライディングクローザー DSC-CW30V-22 / DSC-CW30V-31(製品一式) 【扉重量:10~30kg用, 傾斜式, 木製軽量建具用, 引き戸クローザー, NITTO KOHKI】
カートに追加する前に、必ず 「レール長さ」をご選択 下さい。
商品概要
- 商品分類
- 引き戸クローザー(スライディングクローザー)
- メーカー・ブランド
- 日東工器(NITTO KOHKI)
- 型式・種類
- 傾斜式・木製軽量建具用
- 品番・型番
-
- DSC-CW30V-22(レール:L=2,200mm)
- DSC-CW30V-31(レール:L=3,100mm)
- 機能・特徴
-
- 優しい技術で木製軽量建具用の最適セット品を低価格にて提供します。
- 傾斜式木製仕様に必要な部品を標準装備。(ガイドレール、ガイドローラー等を標準装備。)
- 簡単操作で左右勝手兼用を実現。
- ストップ機能
- ストップ付き
- 左右勝手
- 左右勝手兼用
- 適用ドア重量
- 10~30kg
- 適用ドア寸法
-
- レール L=2,200mm:DW 600~1,200mm
- レール L=3,100mm:DW 1,200~1,600mm
- 最大ストーク
- 1,500mm
- 制動装置
- SC-C03V
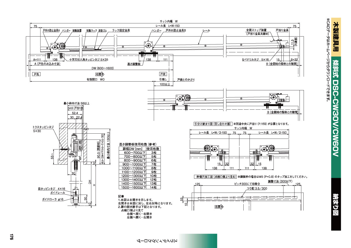
[ 製品図面・納まり図 ]
-
- ピンチアウト(拡大)操作できます -

[ 製品仕様・特徴 ]
- カタログ「DSC-CW30V」
-
- ピンチアウト(拡大)操作できます -
[ 関連リンク ]
スライディングクローザー一覧
日東工器(NITTO KOHKI)のカテゴリ一覧









日東工器
オートヒンジ(丁番型)
スライディングクローザー


傾斜式(DSC型)
メンテナンス用部品・パーツ
オートヒンジ(丁番型)
いわきエンジニアリング
大鳥機工
カツデン
シブタニ
ダイケン
長沢製作所
中西産業
日東工器
ニュースター
ハシダ技研
ホクシヨー
増田産業
マルキ
美和ロック
ユニオン
ヨコヅナ
リョービ