- 関連カテゴリ:
- スライディングクローザー
- 傾斜式(DSC型)
- 日東工器
特設ページ
- NITTO KOHKI
- 商品コード:nk dsc-c015
静音・軽快な開閉と施工性に優れた高性能引き戸クローザー。
日東工器 スライディングクローザー DSC-C015(製品一式) 【扉重量:80~150kg用, 傾斜式, 重量鋼製建具用, 引き戸クローザー, NITTO KOHKI】
日東工器 スライディングクローザー DSC-C015(製品一式) 【扉重量:80~150kg用, 傾斜式, 重量鋼製建具用, 引き戸クローザー, NITTO KOHKI】
カートに追加する前に、必ず 「レール長さ」をご選択 下さい。
商品概要
- 商品分類
- 引き戸クローザー(スライディングクローザー)
- メーカー・ブランド
- 日東工器(NITTO KOHKI)
- 型式・種類
- 傾斜式・重量鋼製建具用
- 品番・型番
-
- DSC-C015-22(レール:L=2,200mm)
- DSC-C015-31(レール:L=3,100mm)
- 機能・特徴
-
- 傾斜式重量鋼製扉仕様に必要な部品を標準装備。(全開ストップ装置等を標準装備)
- エンドレスタイプの流体摩擦抵抗方式の採用で長寿命。
- 制動ラックが長くなって制動範囲が大きくなりました。(扉質量10~80kg用の1.5倍)
- 簡単操作で左右兼用を実現。
- ドライバーなどで簡単に施工できます。
- ストップ機能
- ストップ付き
- 左右勝手
- 左右勝手兼用
- 適用ドア重量
- 80~150kg
- 適用ドア寸法
-
- レール L=2,200mm:DW 770~1,200mm
- レール L=3,100mm:DW 1,200~1,600mm
- 最大ストロ-ク
- 1,500mm
- 制動装置
- SC-C15
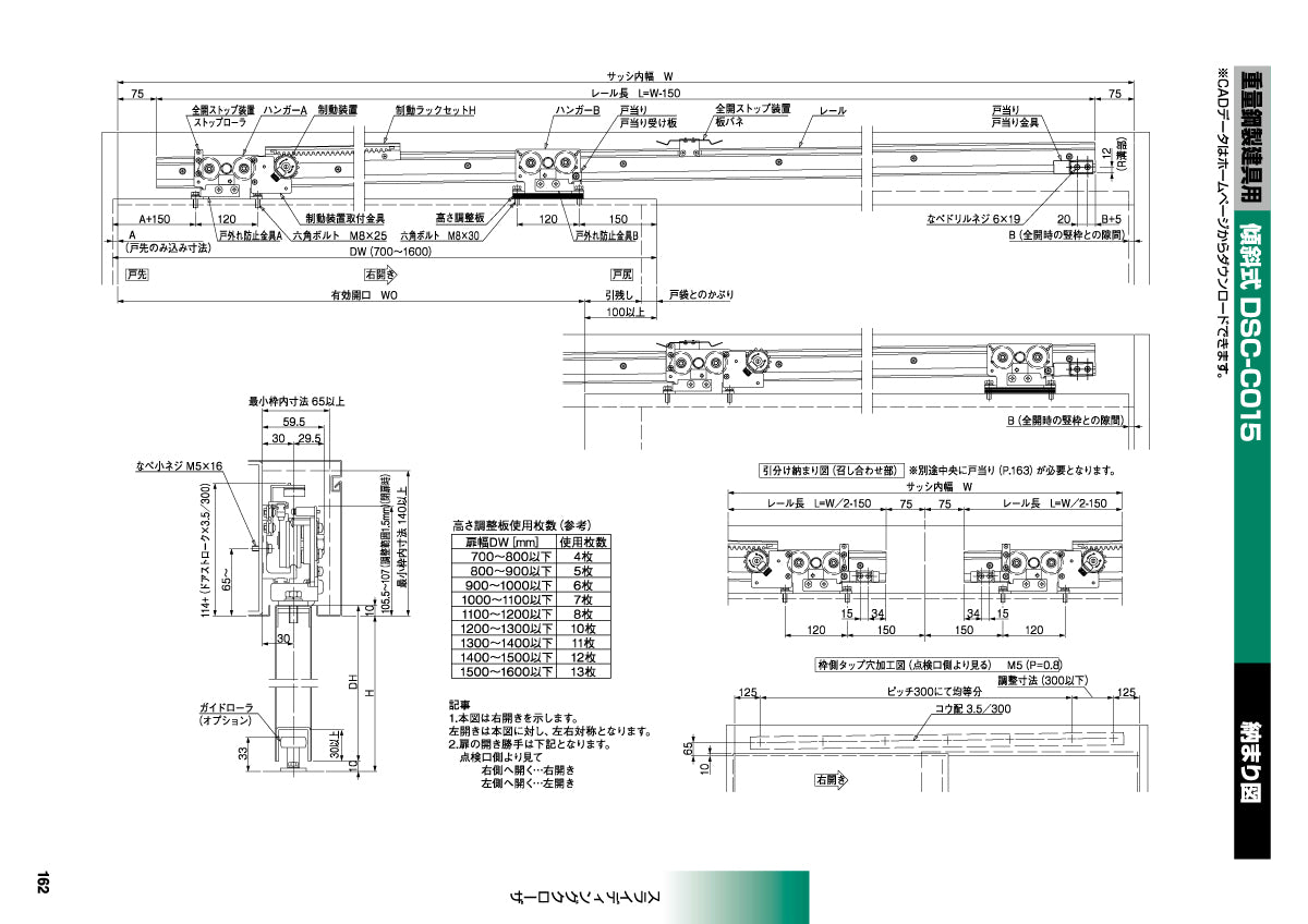
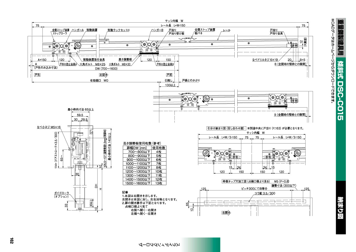
[ 製品図面・納まり図 ]
-
- ピンチアウト(拡大)操作できます -

[ 製品仕様・特徴 ]
- カタログ「DSC-C015」
-
- ピンチアウト(拡大)操作できます -
[ 関連リンク ]
スライディングクローザー一覧
日東工器(NITTO KOHKI)のカテゴリ一覧









日東工器
オートヒンジ(丁番型)
スライディングクローザー


傾斜式(DSC型)
メンテナンス用部品・パーツ
オートヒンジ(丁番型)
いわきエンジニアリング
大鳥機工
カツデン
シブタニ
ダイケン
長沢製作所
中西産業
日東工器
ニュースター
ハシダ技研
ホクシヨー
増田産業
マルキ
美和ロック
ユニオン
ヨコヅナ
リョービ